固定式液压升降卸货平台是通过嵌入地面坑位的安装方式,实现车辆与仓库月台的无缝对接,是现代仓库调节利器。然而,坑位挖掘作为安装的首要环节,若施工不规范,可能导致平台倾斜、沉降甚至设备故障。那卸货平台的坑位该如何进行预留呢?

一、坑位挖掘前的准备工作
1、现场勘查与图纸确认
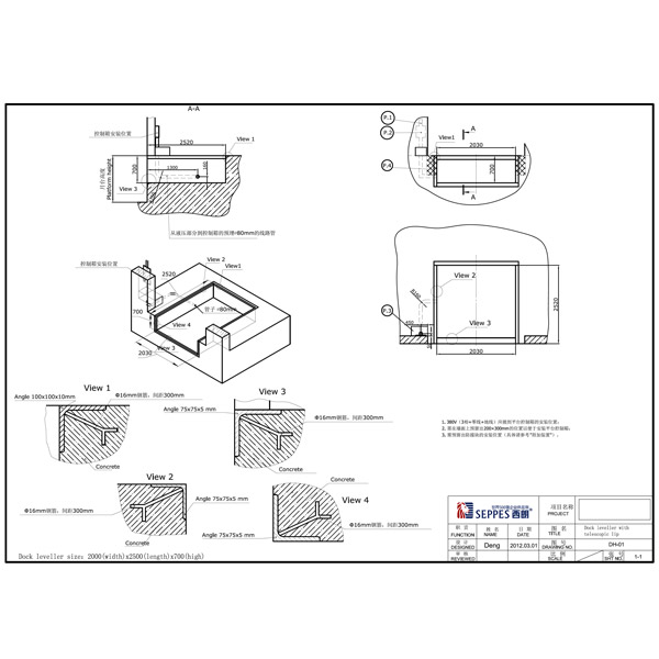
测量坑位尺寸:根据卸货平台规格(如平台尺寸、升降行程)确定坑位长、宽、深。例如,标准平台坑位深度通常为300-500mm,需预留10-20mm安装间隙。
地质评估:检查地下管线(如水电、通信线路)、地基承载力,避免破坏设施或因土质松软导致坑位塌陷。
图纸复核:确认坑位设计图,重点关注预埋件位置、管线预埋等细节。

二、卸货坑位挖掘核心步骤
1. 定位放线
标记坑位边界:使用墨线或喷漆在地面标出坑位轮廓,误差需控制在±5mm以内。
控制点设置:在坑位四角及中心位置设置高程控制点,确保坑底平整度。
2. 土方开挖
分层挖掘:先挖至设计深度上方10cm,再人工精细修整,避免超挖或扰动基底土。
边坡处理:若坑位深度超过500mm,需按1:0.5坡度放坡,防止塌方。
排水预留:在坑底最低处设置排水沟,连接至仓库排水系统,防止积水浸泡。

3. 基础处理
钢筋绑扎:按设计图纸铺设双层双向钢筋网,增强混凝土抗裂性。
模板安装:固定钢制模板,确保模板垂直度与拼缝严密性。
4. 混凝土浇筑与养护
浇筑要求:采用C30及以上强度混凝土,分层振捣密实,避免蜂窝麻面。
表面处理:初凝前人工抹平,二次收光,确保坑底平整度误差≤2mm/m。
三、坑位施工关键注意事项
精度控制
使用激光水平仪实时监测坑底高程,误差需≤3mm。
预埋件(如液压缸固定螺栓)需与模板牢固连接,位置偏差≤2mm。
排水与防潮
坑底排水坡度≥1%,确保雨水快速排出。
混凝土表面涂刷防水涂料,防止地下水渗透导致锈蚀。
坑位挖掘是固定式液压升降卸货平台的安全高效使用的关键,通过科学规划、严格施工与精细验收,可有效规避后期使用风险。建议客户在施工前与西朗进行充分沟通确保坑位质量符合标准,为高效物流装卸提供可靠保障。
苏公网安备32050602011995